Prodej bytu 3+1+L, 80 m2
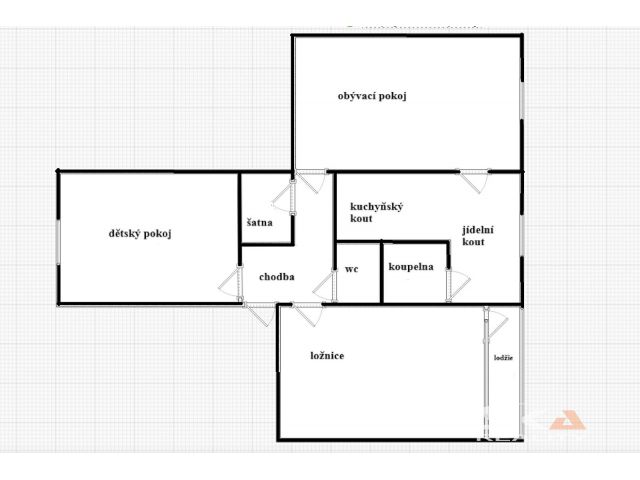
Nabízíme k prodeji velmi prostorný byt v osobním vlastnictví o dispozici 3+1 s lodžií a celkové podlahové ploše 80 m². Byt se nachází ve 2. nadzemním podlaží (1. patře) revitalizovaného panelového domu v klidné západní části města Louny, v ulici Přemyslovců. Dům prošel kompletní revitalizací, má zateplenou fasádu a vyměněné stoupací vedení IS. Vytápění objektu je řešeno centrálně dálkově. Byt je aktuálně v původním udržovaném stavu, což představuje ideální příležitost pro budoucí majitele k rekonstrukci přesně dle jejich představ, ačkoli je ihned obyvatelný. Praktická dispozice zahrnuje vstupní chodbu s šatnou, samostatnou toaletu a koupelnu s vanou (umakartové jádro), dále kuchyň s jídelním koutem, obývací pokoj, dětský pokoj a ložnici. Z ložnice je přístup na prostornou lodžii o velikosti přibližně 3m2. Všechny pokoje jsou světlé a prostorné, orientace oken na východ a západ. K bytu náleží velkorysé úložné prostory - komora na chodbě (1m2) a mimořádně velká sklepní kóje (8m2). Tyto plochy nejsou započítány v uvedené výměře bytu, stejně tak výměra lodžie. Dům je umístěn v klidné lokalitě, přímo za ním najdete zeleň a dětské hřiště. Veškerá občanská vybavenost (škola, školka, obchody, MHD) je v dosahu. Doporučujeme osobní prohlídku.
cena v RK
Základní údaje
Dispozice
3 + 1
Podlaží
2
Počet podlaží v domě
4
Celková podlahová plocha [m²]
80
Užitná plocha [m²]
80
Druh objektu
panelový
Stav objektu
velmi dobrý
Vlastnictví
osobní
Plocha balkónu [m²]
0
Plocha teras [m²]
0
Lodžie [m²]
3
Upřesňující údaje
Užitná plocha [m²]
80
Bytové jádro
umakartové
Topení
| lokální plynové: | NE |
| lokální na tuhá paliva: | NE |
| lokální elektrické: | NE |
| ústřední plynové: | NE |
| ústřední na tuhá paliva: | NE |
| ústřední elektrické: | NE |
| ústřední dálkové: | ANO |
| jiné: | NE |
Dopravní dostupnost
| vlak: | ANO |
| dálnice: | ANO |
| silnice: | ANO |
| MHD nebo IDS: | ANO |
| autobus: | ANO |
Občanská vybavenost
| škola: | ANO |
| školka: | ANO |
| zdravotnické zařízení: | ANO |
| pošta: | ANO |
| supermarket: | ANO |
| kompletní síť obchodů a služeb: | ANO |
Vloženo:
03.11.2025
Makléř této zakázky
Spravováno softwarem:
ReeGO24





























