Prodej stavebního pozemku 5840m2, Heřmanův Městec okr. Chrudim
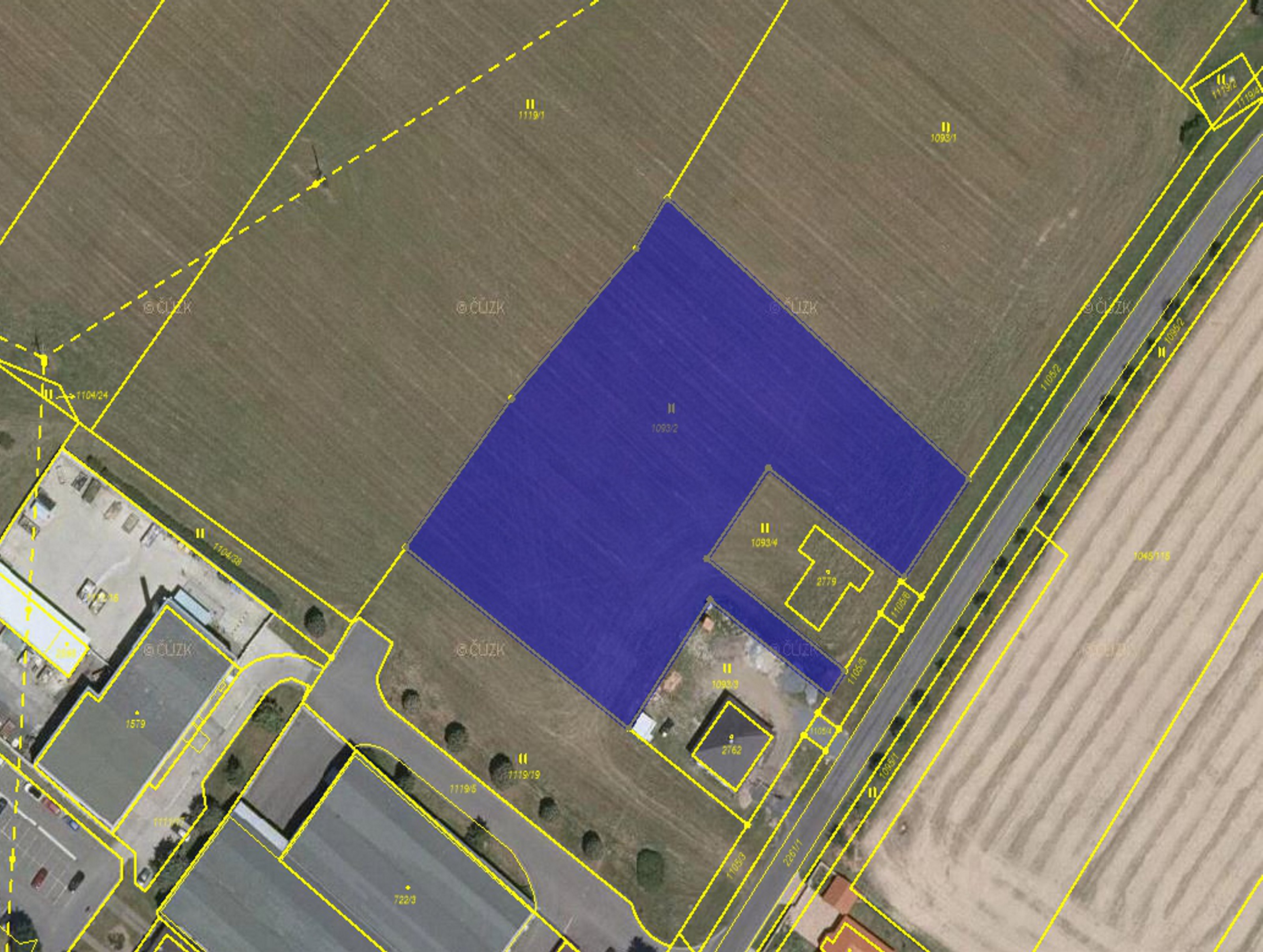
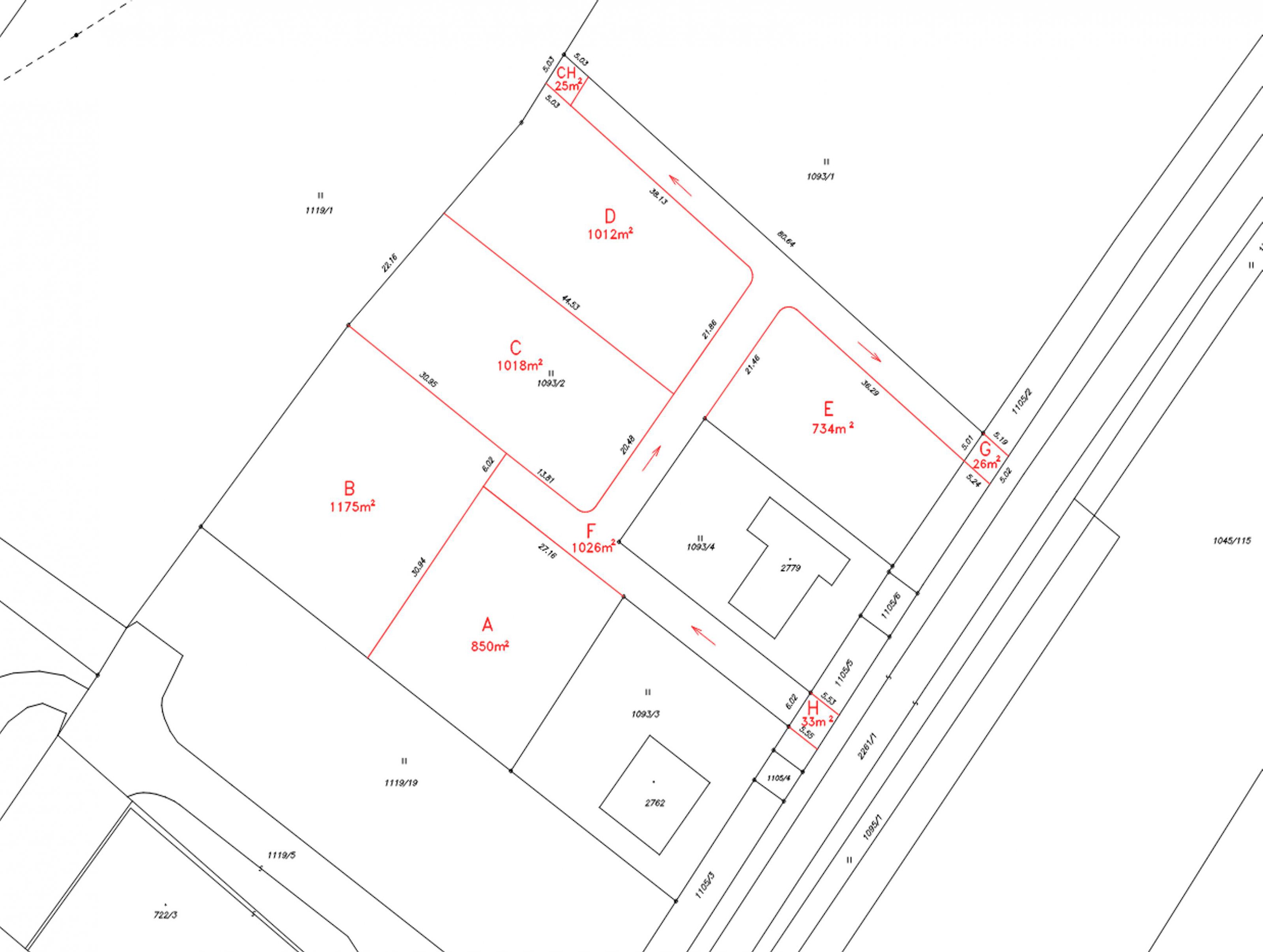
Nabídka zajímavého investičního stavebního pozemku o výměře 5840m2, který se nachází ve městě Heřmanův Městec, Pardubický kraj. Jedná se o rovinatý stavební pozemek situovaný při ulici Havlíčkova v severovýchodní části města (u silnice směr Klešice) v klidné části obce. Napojení inženýrských sítí - na stávající stav, elektřina, plyn, kanalizace a vodovod( u přilehlé asfaltové komunikace). Dle územního plánu je pozemek součástí plochy smíšeného území - plochy obytné, městské, míra zastavěnosti 60%(včetně zpevněných ploch) a výšková regulace max. 2 nadzemní podlaží. Pozemek je vzhledem ke své rozloze a možností jeho dělení( návrh dělení ve fotogalerii) na více parcel vhodný k výstavbě více rodinných domů jedním investorem. Více informací u makléře. Veškerá občanská vybavenost v místě. Doporučujeme
7 600 000Kč
včetně provize, včetně právního servisu, další pozn.:vhodné jako investice
Základní údaje
Celková plocha
5 840
m2
Druh pozemku
pro bydlení
Upřesňující údaje
Umístění objektu
klidná část obce
Terén pozemku
rovina
Možnost stavby na pozemku
samostatně stojící dům
Vjezd na pozemek
| ANO: | ANO |
Inženýrské sítě
| voda: | ANO |
| kanalizace: | ANO |
| plyn: | ANO |
| elektřina: | ANO |
Typ komunikace
| betonová: | NE |
| dlážděná: | ANO |
| asfaltová: | ANO |
| neupravená: | NE |
Dopravní dostupnost
| vlak: | ANO |
| dálnice: | ANO |
| silnice: | ANO |
| MHD nebo IDS: | NE |
| autobus: | ANO |
Občanská vybavenost
| škola: | ANO |
| školka: | ANO |
| zdravotnické zařízení: | ANO |
| pošta: | ANO |
| supermarket: | ANO |
| kompletní síť obchodů a služeb: | ANO |
Vloženo:
16.05.2022
Makléř této zakázky
Spravováno softwarem:
ReeGO24
























