Stavební pozemek s investičním potenciálem v Brně-Maloměřicích
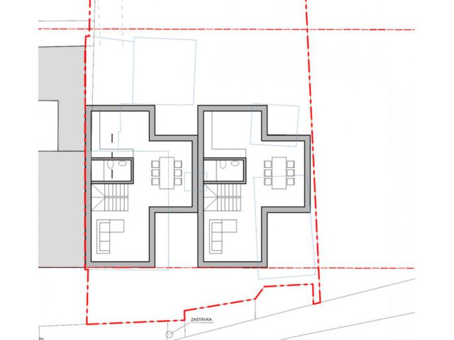
Představujeme vám příležitost ke koupi stavebního pozemku s celkovou výměrou 505 m², nacházejícího se v klidné lokalitě Brno-Maloměřice, na adrese Zimní 9. Aktuálně je pozemek zastavěn rodinným domem, jehož stav odpovídá stáří objektu a vyžaduje kompletní rekonstrukci nebo demolici. Zastavěná plocha 241 m2. Možnosti výstavby Pro tuto nemovitosti byla zpracována koncepční studie v souladu se stanoviskem OÚPR Brno na dvě varianty budoucího využití: • Dva řadové rodinné domy s dispozicí 4+kk, suterénem a dvěma obytnými podlažími. • Bytový dům se třemi samostatnými byty, ideální pro investici a pronájem. Součástí pozemku je také slunná zahrada, která poskytuje dostatek soukromí a možnost relaxace v příjemném prostředí. Nemovitost je napojena na veškeré inženýrské sítě: elektřinu, plyn, obecní vodovod i kanalizaci. Díky nově zprovozněnému úseku Velkého městského okruhu (VMO) v prosinci 2024 došlo i ke zlepšení dopravní dostupnosti Maloměřic, což znamená rychlejší napojení na hlavní dopravní tahy Brna. Autobusová zastávka MHD se nachází přímo u domu, což zajišťuje pohodlné spojení s centrem města. Lokalita - Maloměřice jsou klidnou rezidenční oblastí s převahou rodinných domů, ideální pro rodinné bydlení. V blízkosti se nachází přírodní lokalita Hády, nabízející rekreační možnosti, naučné stezky a panoramatické vyhlídky na Brno. Tento pozemek je ideální volbou pro ty, kteří chtějí realizovat vlastní bydlení v kombinaci s investiční příležitostí. Více informací o nabízené nemovitosti Vám ráda poskytnu na níže uvedeném tel. čísle.
9 750 000Kč
včetně DPH, další pozn.:Měsíční poplatky budou upřesněny
Základní údaje
Celková plocha
505
m2
Druh pozemku
pro bydlení
Upřesňující údaje
Vloženo:
14.01.2026
Makléř této zakázky
Spravováno softwarem:
ReeGO24










