Pronájem bytu 1+1, 45 m2
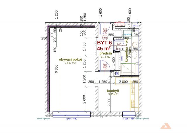
Nabízíme k dlouhodobému pronájmu světlý a prostorný byt o dispozici 1+1 a podlahové ploše 45 m², který se nachází ve druhém nadzemním podlaží v moderní novostavbě bytového domu v klidné jižní části města Louny. Byt je ideální volbou pro jednotlivce nebo pár hledající komfortní bydlení s nízkými provozními náklady a kvalitním technickým zázemím. Bytová jednotka je navržena s důrazem na funkčnost i pohodlí. Dispozice zahrnuje samostatnou obytnou část, kuchyň s moderní kuchyňskou linkou a koupelnu. Koupelna je prostorná a vybavená sprchovým koutem, umyvadlem a toaletou. Kuchyňská linka je osazena vestavěnými spotřebiči, konkrétně sklokeramickou varnou deskou, elektrickou pečicí troubou, digestoří, dřezem a myčkou nádobí. Ve vstupní chodbě se nachází vestavěná skříň, která nabízí dostatek úložného prostoru. Součástí vybavení bytu je také domácí telefon a centrální regulace vytápění s programovatelným termostatem, umožňující individuální nastavení teploty dle potřeb nájemníka. Vytápění domu je řešeno centrálním tepelným čerpadlem, přičemž náklady na vytápění jsou již zahrnuty v ceně nájmu, stejně jako osvětlení a pravidelný úklid společných prostor domu. Nájemník tak mimo samotné nájemné hradí pouze spotřebu studené a teplé vody a případně internetové připojení (orientačně cca 2.000 Kč měsíčně), dále elektrickou energii. Smlouva na odběr elektřiny se přepisuje na nájemníka. K bytu je možné si pronajmout také prostornou dvougaráž umístěnou ve dvoře u domu za 2.000 Kč / měsíc. Vjezd do areálu je zajištěn automatickou bránou na dálkové ovládání, díky čemuž je dvůr po celý den uzavřený a zabezpečený. Požadována kauce ve výši 34.500,- Kč, byt je volný od 1.2.2026. Energetická náročnost budovy: třída B - úsporná a moderní stavba s nízkými provozními náklady. V případě zájmu o více informací nebo sjednání osobní prohlídky nás neváhejte kontaktovat. Rádi Vám byt osobně představíme.
11 500Kč za měs.
včetně provize, další pozn.:Majitel si vyhrazuje právo zvolit nájemce na základě vybraných kritérií
Základní údaje
Dispozice
1 + 1
Podlaží
2
Počet podlaží v domě
3
Celková podlahová plocha [m²]
45
Užitná plocha [m²]
45
Druh objektu
cihlový
Stav objektu
novostavba
Vlastnictví
osobní
Plocha balkónu [m²]
0
Plocha teras [m²]
0
Lodžie [m²]
0
Upřesňující údaje
Užitná plocha [m²]
45
Bytové jádro
zděné
Druh bytu
v bytovém domě (v soukromém vlastnictví)
Umístění objektu
okraj obce
Vybavení domu
| garáž: | ANO |
| výtah: | NE |
| parkoviště: | NE |
Telekomunikace
| telefon: | NE |
| internet: | ANO |
Topení
| lokální plynové: | NE |
| lokální na tuhá paliva: | NE |
| lokální elektrické: | NE |
| ústřední plynové: | NE |
| ústřední na tuhá paliva: | NE |
| ústřední elektrické: | NE |
| ústřední dálkové: | NE |
| jiné: | ANO |
Dopravní dostupnost
| vlak: | ANO |
| dálnice: | ANO |
| silnice: | ANO |
| MHD nebo IDS: | ANO |
| autobus: | ANO |
Elektřina
| 120V: | NE |
| 230V: | ANO |
| 380V / 400V: | NE |
Voda
| studna nebo jiný vlastní zdroj: | NE |
| dálkový vodovod: | ANO |
| voda je v objektu i rozvedena: | ANO |
Odpad
| kanalizace: | ANO |
| čistička: | NE |
Občanská vybavenost
| škola: | ANO |
| školka: | ANO |
| zdravotnické zařízení: | ANO |
| pošta: | ANO |
| supermarket: | ANO |
| kompletní síť obchodů a služeb: | ANO |
Vloženo:
17.12.2025
Makléř této zakázky
Spravováno softwarem:
ReeGO24


























