Nabízíme pronájem komerčního prostoru ve středu města Šlapanice na ul. Brněnská
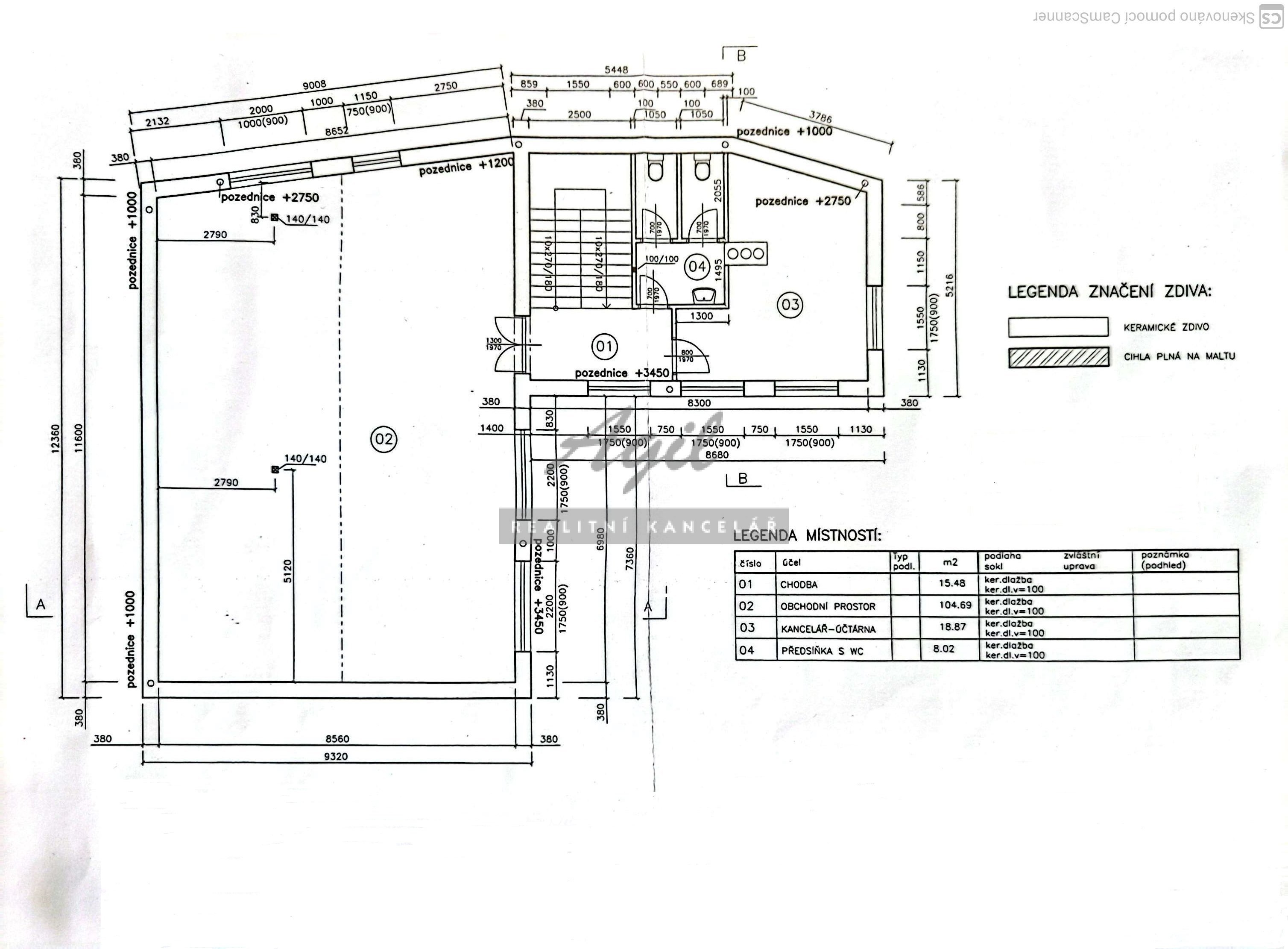
Exkluzivně nabízíme pronájem velice reprezentativní, novostavby, komerční budovy se dvěma parkovacími místy. Objekt se nachází ve středu města Šlapanic na ulici Brněnská v těsné blízkosti náměstí. Jedná se o prostor v přízemí o výměře 146 m2 a prostor v patře o výměře 147 m2, tyto prostory se nacházejí ve dvorním traktu nově postavené patrové budovy do tvaru ,, L´´.o celkové ploše cca 293 m2 a užitné ploše 285 m2. Energetická náročnost budovy třídy C - 126 kWh/ (m2 rok). Dispozice Přízemí ( 146 m2 ) Chodba 5 m2, technická místnost 9 m2, místnost 105 m2, kuchyňka 12 m2, WC s předsíňkou 8 m2, kotelna 7 m2, průjezd a 1x parkovací místo. Patro ( 147 m2 ) Chodba 15 m2, místnost 105 m2, kancelář 19 m2, WC s umyvadlem 8 m2 a 1x parkovací místo. Prostory lze využít mnoha způsoby např. jako prodejna, ordinace pro praktického lékaře, pro rehabilitace, pro zubaře, veterinární ordinace, kosmetické studio, kancelářské prostory, zásilkovna, a další. Prostory jsou ihned volné. Parkovací stání 1.500,- Kč/měsíc ( není podmínkou ). Nájem: 50.000,- Kč/měsíc + zálohy na energie + kauce
50 000Kč za měs.
+ provize RK
Základní údaje
Celková plocha [m²]
293
Počet podlaží
2
Počet míst k parkování
2
Druh objektu
cihlový
Stav objektu
velmi dobrý
Účel budovy
administrativní
Typ domu
patrový
Upřesňující údaje
Umístění objektu
rušná část obce
Telekomunikace
| telefon: | ANO |
| internet: | ANO |
Sítě
| satelit: | NE |
| kabelová TV: | NE |
| kabelové rozvody: | ANO |
| ostatní rozvody: | NE |
Topení
| lokální plynové: | NE |
| lokální na tuhá paliva: | NE |
| lokální elektrické: | NE |
| ústřední plynové: | ANO |
| ústřední na tuhá paliva: | NE |
| ústřední elektrické: | NE |
| ústřední dálkové: | NE |
| jiné: | NE |
Dopravní dostupnost
| vlak: | ANO |
| dálnice: | ANO |
| silnice: | ANO |
| MHD nebo IDS: | ANO |
| autobus: | ANO |
Elektřina
| 120V: | NE |
| 230V: | ANO |
| 380V / 400V: | NE |
Voda
| studna nebo jiný vlastní zdroj: | NE |
| dálkový vodovod: | NE |
| voda je v objektu i rozvedena: | ANO |
Odpad
| kanalizace: | ANO |
| čistička: | NE |
Plyn
| individuální: | NE |
| plynovod: | ANO |
Ukazatel energetické náročnosti v [kWh/m2/rok]
126
Vloženo:
20.03.2025
Makléř této zakázky
Spravováno softwarem:
ReeGO24
































