Rodinný dům 4+kk Domašov
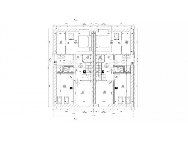
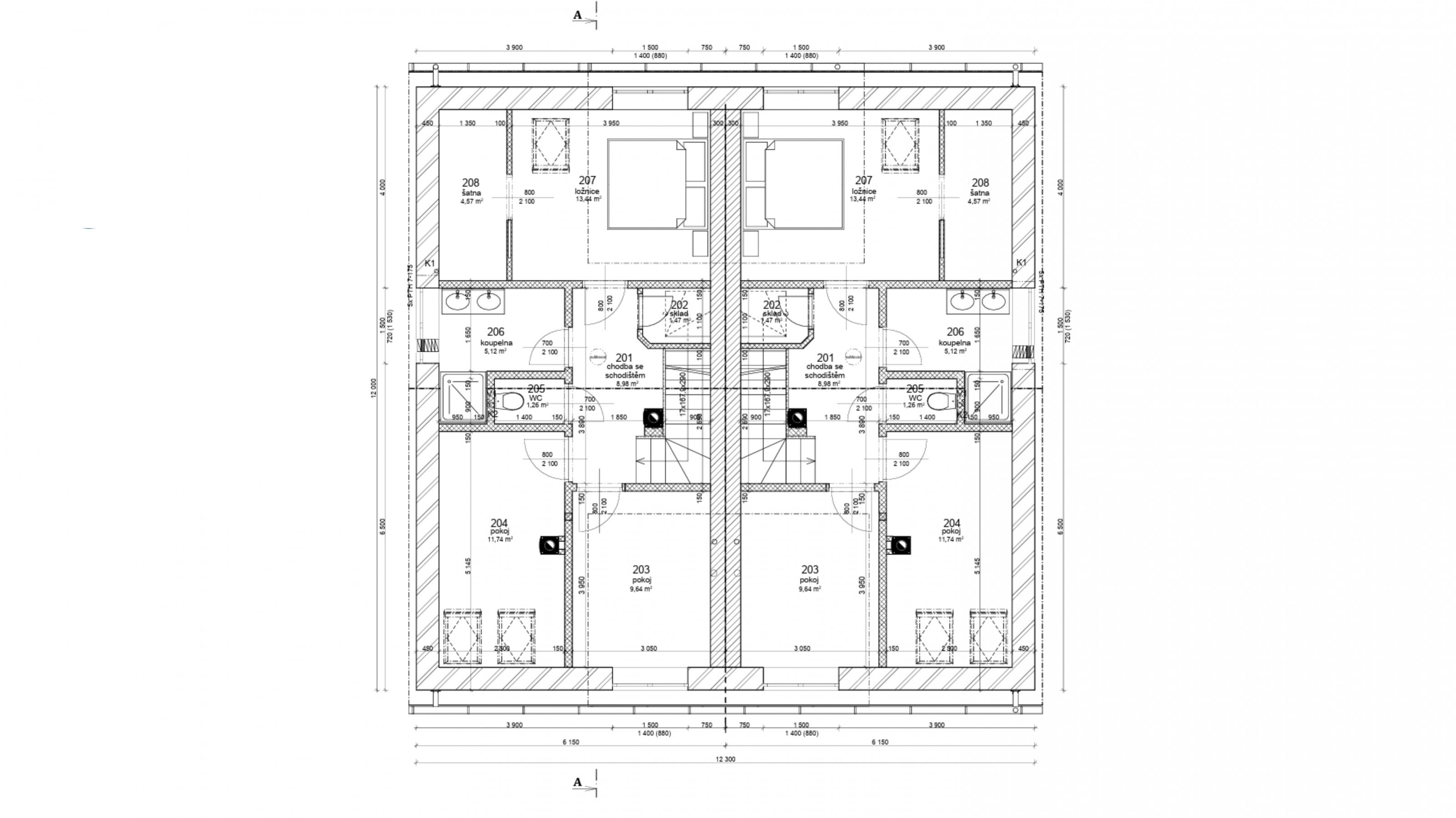
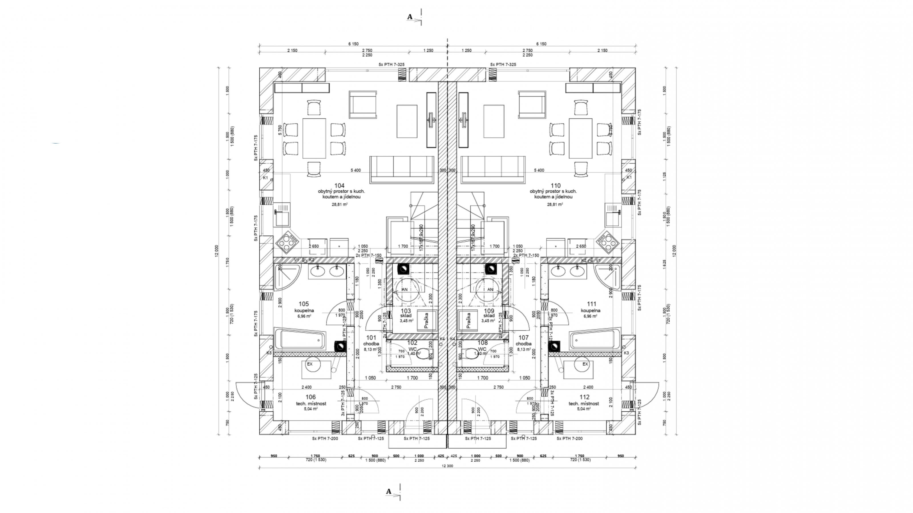
Novostavba rodinného domu ve stadiu rozestavěnosti Hledáte moderní dům, který si můžete dokončit přesně podle svých představ? Místo, kde si vytvoříte skutečný domov pro svou rodinu? Na okraji obce Domašov nabízíme novostavbu rodinného domu o užitné ploše 132 m² se zahradou. Jedná se o polovinu dvojdomu se samostatným vstupem. Dům je v současnosti ve stavu rozestavěné stavby a prodává se právě v tomto stavu před dokončením. Budoucí majitel si tak může dům dokončit podle vlastních požadavků, materiálů a standardu. Dispozice domu je navržena prakticky pro každodenní rodinný život. V 1. nadzemním podlaží se nachází vstupní chodba, samostatné WC, sklad, technická místnost, koupelna a hlavní obytný prostor s kuchyňským koutem a jídelnou, který tvoří přirozené centrum domu. V podkroví je chodba se schodištěm, dva samostatné pokoje, ložnice, šatna, koupelna a samostatné WC. Toto patro poskytuje dostatek soukromí pro jednotlivé členy domácnosti. V zadní části domu je plánována terasa o velikosti 26 m² a zahrada - ideální místo pro letní posezení, grilování nebo odpočinek. Nemovitost se prodává ve stavu před dokončením. V současnosti je plánována realizace podlah, dokončení stropů, dokončení elektroinstalace, instalace kotle, provedení zemních prací, výstavba přístřešku pro automobil, stavba terasy a montáž venkovních žaluzií. Kupující může dům koupit v aktuálním rozestavěném stavu a dokončit jej svépomocí nebo podle vlastního dodavatele. Současně je možné se s prodávajícím dohodnout na dokončení domu do finální podoby podle předem stanovených podmínek. Technické provedení Cihlová novostavba z keramických tvárnic Porotherm Obvodové zdivo tl. 450 mm Vnitřní nosné zdi tl. 300 a 250 mm Vnitřní příčky 100-150 mm Sedlová střecha s plechovou krytinou Plastová okna s trojsklem Příprava na venkovní žaluzie v 1. nadzemním podlaží Energetická náročnost budovy: třída A Technické vybavení elektřina 230 / 400 V veřejný vodovod veřejná kanalizace s čerpadlem retenční nádrž na dešťovou vodu Vytápění domu je plánováno kombinací elektrického kotle a krbových kamen s výměníkem. Plynová přípojka zde není plánována, protože plynovod se nachází ve větší vzdálenosti od pozemku. Internet je aktuálně řešen bezdrátově. V obci je zároveň plánováno zavedení optického internetu, jehož realizace je očekávána na jaře. Parkování bude zajištěno přímo u domu pod vlastním přístřeškem. Novostavba rodinného domu není projektově určena pro osoby s omezenou schopností pohybu a orientace a není navržena jako bezbariérová. Klidná lokalita na okraji obce, dostatek prostoru pro rodinný život a možnost dokončit si dům podle vlastních představ. Máte zájem o více informací nebo si chcete nemovitost prohlédnout osobně? Ozvěte se nám a rádi vám dům představíme.
9 950 000Kč
včetně provize, včetně DPH, včetně právního servisu
Základní údaje
Užitná plocha [m²]
132
Počet podlaží v domě
2
Poloha objektu
samostatný
Typ domu
patrový
Druh objektu
cihlový
Stav objektu
novostavba
Zastavěná plocha [m²]
161
Plocha parcely [m²]
700
Upřesňující údaje
Dispoziční řešení domu
jednogenerační
Další nebytové prostory
| garáž: | NE |
| dvojgaráž: | NE |
| přístřešek: | ANO |
Typ komunikace
| betonová: | NE |
| dlážděná: | NE |
| asfaltová: | ANO |
| neupravená: | NE |
Schodiště
| dřevěné: | NE |
| kamenné: | NE |
| betonové: | ANO |
| kovové: | NE |
| zábradlí nebo madlo: | NE |
Telekomunikace
| telefon: | ANO |
| internet: | ANO |
Topení
| lokální plynové: | ANO |
| lokální na tuhá paliva: | NE |
| lokální elektrické: | NE |
| ústřední plynové: | NE |
| ústřední na tuhá paliva: | NE |
| ústřední elektrické: | NE |
| ústřední dálkové: | NE |
| jiné: | NE |
Dopravní dostupnost
| vlak: | NE |
| dálnice: | ANO |
| silnice: | ANO |
| MHD nebo IDS: | NE |
| autobus: | ANO |
Elektřina
| 120V: | NE |
| 230V: | ANO |
| 380V / 400V: | ANO |
Voda
| studna nebo jiný vlastní zdroj: | NE |
| dálkový vodovod: | ANO |
| voda je v objektu i rozvedena: | ANO |
Odpad
| kanalizace: | ANO |
| čistička: | NE |
Podle vyhlášky
78/2013 Sb.
Výhled
| na bazén: | NE |
| na moře: | NE |
| na hory: | NE |
| do ulice: | ANO |
| do zahrady: | ANO |
Vloženo:
05.03.2026
Makléř této zakázky
Spravováno softwarem:
ReeGO24

























