Pronájem OV 1+kk Okrouhlá Brno s balkonem
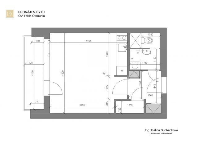
Nabízíme k pronájmu příjemný byt 1+kk s balkone v Brně - Bohunicích. Byt se nachází v revitalizovaném panelovém domě s výtahem. Díky solárním panelům jsou nižší náklady na ohřev vody. Dispozice bytu: předsíň, komora, koupelna s WC, pokoj s kuchyňským koutem. Součástí bytu je také sklepní kóje. Byt je vybaven kuchyňskou linkou se spotřebiči (sklokeramická varná deska, digestoř, pračka, lednice) a zařízenou koupelnou s WC. Okna jsou plastová, opatřená roletami den a noc, vstupní dveře do bytu jsou bezpečnostní. Lokalita: dům se nachází ve slepé ulici s pěkným výhledem do okolí. V docházkové vzdálenosti je FN Brno, Campus Square univerzitní kampus, Lékařská fakulta, mateřské školy, dětské hřiště, zastávky MHD a řada obchodů. Majitel si vyhrazuje právo vybrat nájemce dle vlastních kritérií. Požadovaná jistota činí dva měsíční nájmy. Provize realitní kanceláři: jeden měsíční nájem + DPH. Bližší informace a prohlídku Vám ráda zajistí Galina Suchánková.
12 000Kč za měs.
+ provize RK, další pozn.:+ záloha na energie a služby ve výši 2.700 Kč/ 1 os.
Základní údaje
Dispozice
1 + kk
Podlaží
7
Počet podlaží v domě
8
Celková podlahová plocha [m²]
32
Užitná plocha [m²]
32
Druh objektu
panelový
Stav objektu
velmi dobrý
Vlastnictví
osobní
Plocha balkónu [m²]
4
Plocha teras [m²]
0
Lodžie [m²]
0
Upřesňující údaje
Užitná plocha [m²]
32
Podle vyhlášky
78/2013 Sb.
Vloženo:
03.11.2025
Makléř této zakázky
Spravováno softwarem:
ReeGO24



















