Pronájem kanceláří v administrativní budově Nordica v Ostravě
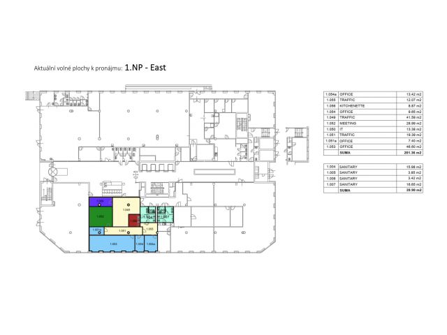
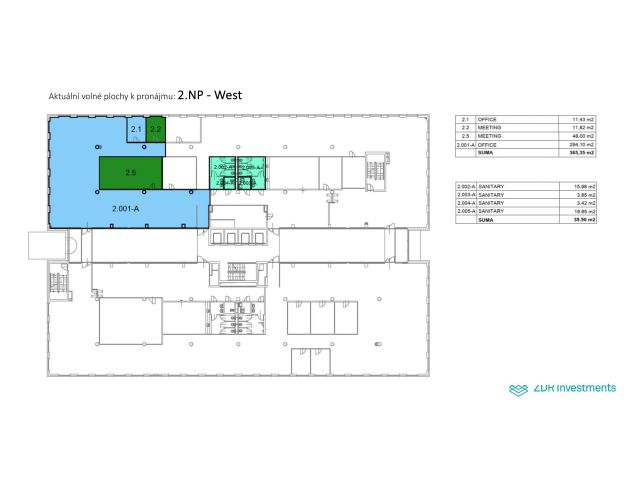
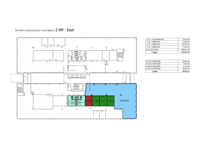
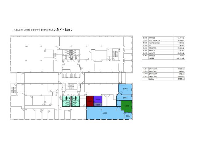
Nabízíme k pronájmu volné jednotky v administrativní budově ZDR Nordica Office v Ostravě na ulici Českobratrská. Jedná se o šesti podlažní objekt s ustupujícím sedmým nadzemním podlažím a se dvěma suterény. Objekt je atriem rozdělený do dvou stejných částí, které podélně rozděluje střední prosklené atrium. Tyto dvě části objektu v prostoru atria vzájemně propojeny můstky. Hlavní vstup je řešen z jihu z volného prostranství od ulice Českobratrská. Nachází se zde recepce. Objekt je situován v blízkosti centra města. Celková pronajímatelná plocha je 10 808 m2. Celková kapacita podzemních garaží je 129 vozidel. V budově jsou zajištěny: technologické rozvody (klima, hasicí zařízení, zdvojená podlaha, elektro, data). Každý nájemce má pro svůj prostor čipovou kartu. Centrální recepce 8 hodin denně, ostraha garáží. Pro více informací nás neváhejte kontaktovat.
cena v RK
Základní údaje
Užitná plocha [m²]
10 808
Počet míst k parkování
129
Druh prostor
obchodní
Druh objektu
smíšený
Stav objektu
velmi dobrý
Typ domu
patrový
Upřesňující údaje
Vloženo:
06.11.2025
Makléř této zakázky
Spravováno softwarem:
ReeGO24














