Prodej cihlového bytu 3+1 s balkonem a sklep Brno, Jugoslávská CP 98 m2
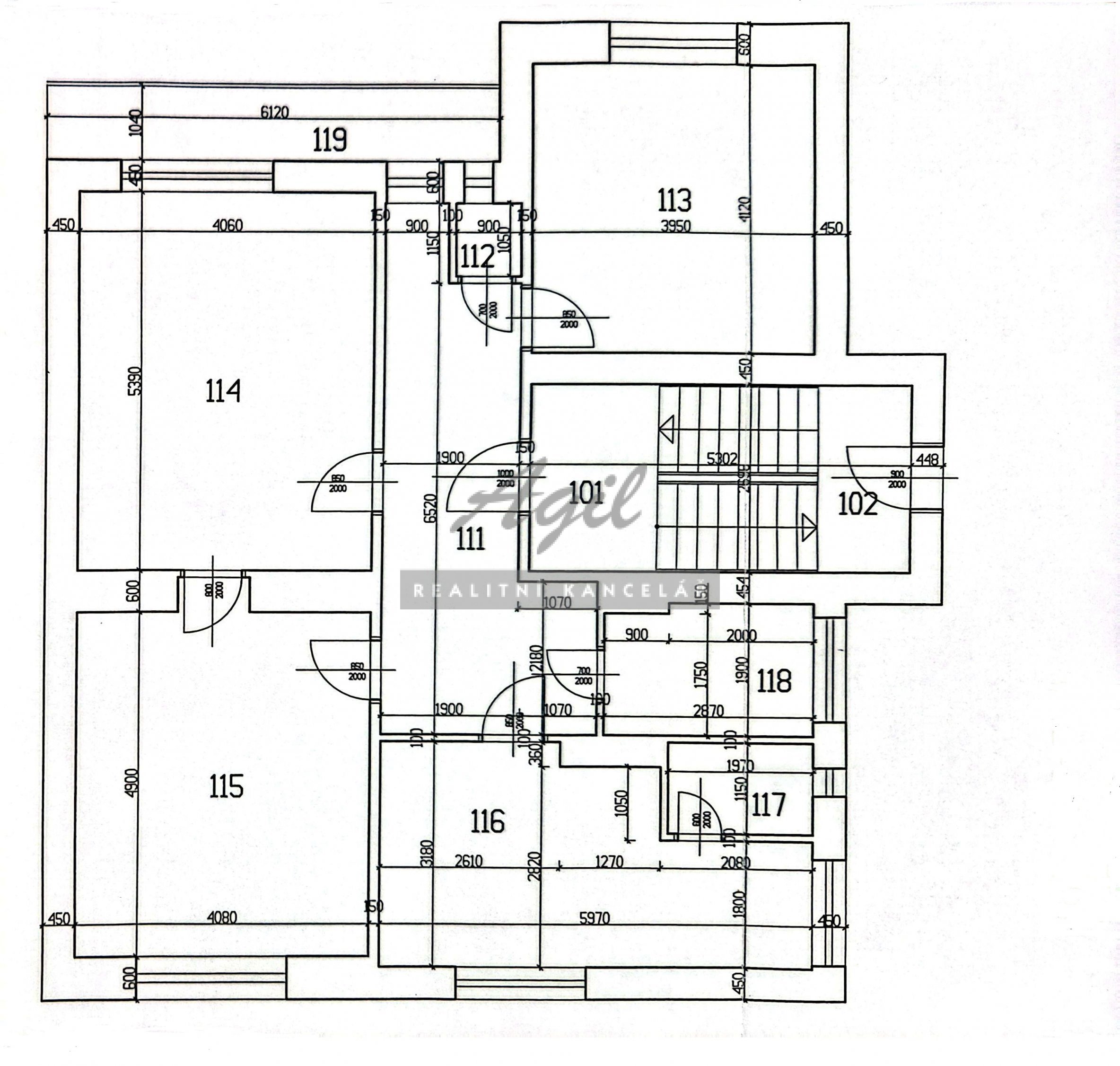
Jedinečná nabídka. Exkluzivně nabízíme prodej velmi prostorného, udržovaného, cihlového bytu ve standardu o dispozici 3+1 v osobním vlastnictví, nacházející se v Brně, v městské části Černá Pole na ulici Jugoslávská. Byt se nachází v 1. patře z 5. patrového bytového domu bez výtahu. Celková plocha bytu je 98 m2 + balkon 6 m2 + sklep 5 m2. Tepelnou pohodu v bytě zajišťuje vlastní plynový kotel s ohřevem teplé vody. Každý ocení i samostatné vstupy do všech pokojů. Z důvodu nedodání PENB uvádíme energetickou náročnost budovy skupinu G. Dispozice Prostorná předsíň 16 m2, kuchyň s možností posezení 5 m2, spížka 2 m2, koupelna 5 m2 s umyvadlem - vanou, přípojkou na pračku a plynovým kotlem, samostatné WC 1 m2, pokoj 16 m2 pokoj 16 m2, pokoj se vstupem na balkon 20 m2, balkon 6 m2, sklep 5 m2. Velkou výhodou je, že byt je v původním, udržovaném stavu a noví majitelé si byt mohou předělat dle svých představ. Vybavenost obce: veškerá Dostupnost: tramvaj č. 3, 5, 7, 9 autobus č. N92. N93. Byt je ihned volný.
9 600 000Kč
+ provize RK
Základní údaje
Dispozice
3 + 1
Podlaží
2
Počet podlaží v domě
6
Celková podlahová plocha [m²]
98
Užitná plocha [m²]
98
Druh objektu
cihlový
Stav objektu
před rekonstrukcí
Vlastnictví
osobní
Plocha balkónu [m²]
6
Plocha teras [m²]
0
Lodžie [m²]
0
Upřesňující údaje
Užitná plocha [m²]
98
Bytové jádro
zděné
Druh bytu
v bytovém domě (v soukromém vlastnictví)
Telekomunikace
| telefon: | NE |
| internet: | ANO |
Sítě
| satelit: | NE |
| kabelová TV: | NE |
| kabelové rozvody: | ANO |
| ostatní rozvody: | NE |
Topení
| lokální plynové: | NE |
| lokální na tuhá paliva: | NE |
| lokální elektrické: | NE |
| ústřední plynové: | ANO |
| ústřední na tuhá paliva: | NE |
| ústřední elektrické: | NE |
| ústřední dálkové: | NE |
| jiné: | NE |
Dopravní dostupnost
| vlak: | ANO |
| dálnice: | ANO |
| silnice: | ANO |
| MHD nebo IDS: | ANO |
| autobus: | ANO |
Elektřina
| 120V: | NE |
| 230V: | ANO |
| 380V / 400V: | NE |
Voda
| studna nebo jiný vlastní zdroj: | NE |
| dálkový vodovod: | NE |
| voda je v objektu i rozvedena: | ANO |
Odpad
| kanalizace: | ANO |
| čistička: | NE |
Plyn
| individuální: | NE |
| plynovod: | ANO |
Občanská vybavenost
| škola: | NE |
| školka: | NE |
| zdravotnické zařízení: | NE |
| pošta: | NE |
| supermarket: | NE |
| kompletní síť obchodů a služeb: | ANO |
Vloženo:
06.03.2026
Makléř této zakázky
Spravováno softwarem:
ReeGO24





















